MORADIA EM LAGOS
TABELA DE CONTEÚDOS
1. LOCAL E
TIPO DE OBRA
Localização da obra: Lagos, Algarve, Portugal
Tipo de obra: Obra de construção de uma moradia unifamiliar
Legenda da imagem: Moradia em Lagos. Projeto de Arquitetura. Vista tridimensional do alçado principal.
2.
PROJETO DE
ARQUITETURA
2.1 AUTORIA
DO PROJETO
Coordenadora e Responsável:
Arquiteta Rita FalcãoCoordenadora Adjunta:
Arq.ª Sara Azevedo, Arq.ª Roberta MarquardtColaboradores:
Arquiteta Júlia Andrade, Arquiteta Mariana FontesGabinete: Arcos Combinados
O descrito em relação ao Projeto de Arquitetura, é no essencial, o que consta da respetiva Memória Descritiva. E créditos devem ser dados à autora do Projeto de Arquitetura.
Autoria da Arquitetura do projeto “Moradia em Lagos”:
Legenda das três imagens presentes na galeria :
Moradia em Lagos. Projeto de Arquitetura. Vistas 3D.
2.2 COLABORAÇÃO
Colaboração: Engenheiro Camilo Mendes.
Gabinete: CMendes Engenharia.
2.3 ENQUADRAMENTO
O lote da moradia, alcalizado em Lagos, Algarve, está inserido num conjunto turístico, em local privilegiado, com boa exposição solar e vistas para o mar, a Sul, e para o Campo de Golfe, a Norte.
2.4
DESCRIÇÃO
DO EDIFÍCIO
Um dos principais objetivos do projeto de Arquitectura, é priorizar a conexão com a natureza envolvente e promover a relação entre o exterior e o interior da edificação.
Deste modo, são previstas varandas e amplas aberturas de vãos, que proporcionam a entrada de iluminação e ventilação natural no interior da moradia, além de proporcionarem belas vistas.
A moradia é constituída por dois pisos, mais um piso enterrado, que são implantados de forma a aproveitar ao máximo a topografia natural do terreno.
Legenda das três imagens presentes na galeria :
Moradia em Lagos. Projeto de Arquitetura.
Vistas tridimensionais a partir do ficheiro IFC.
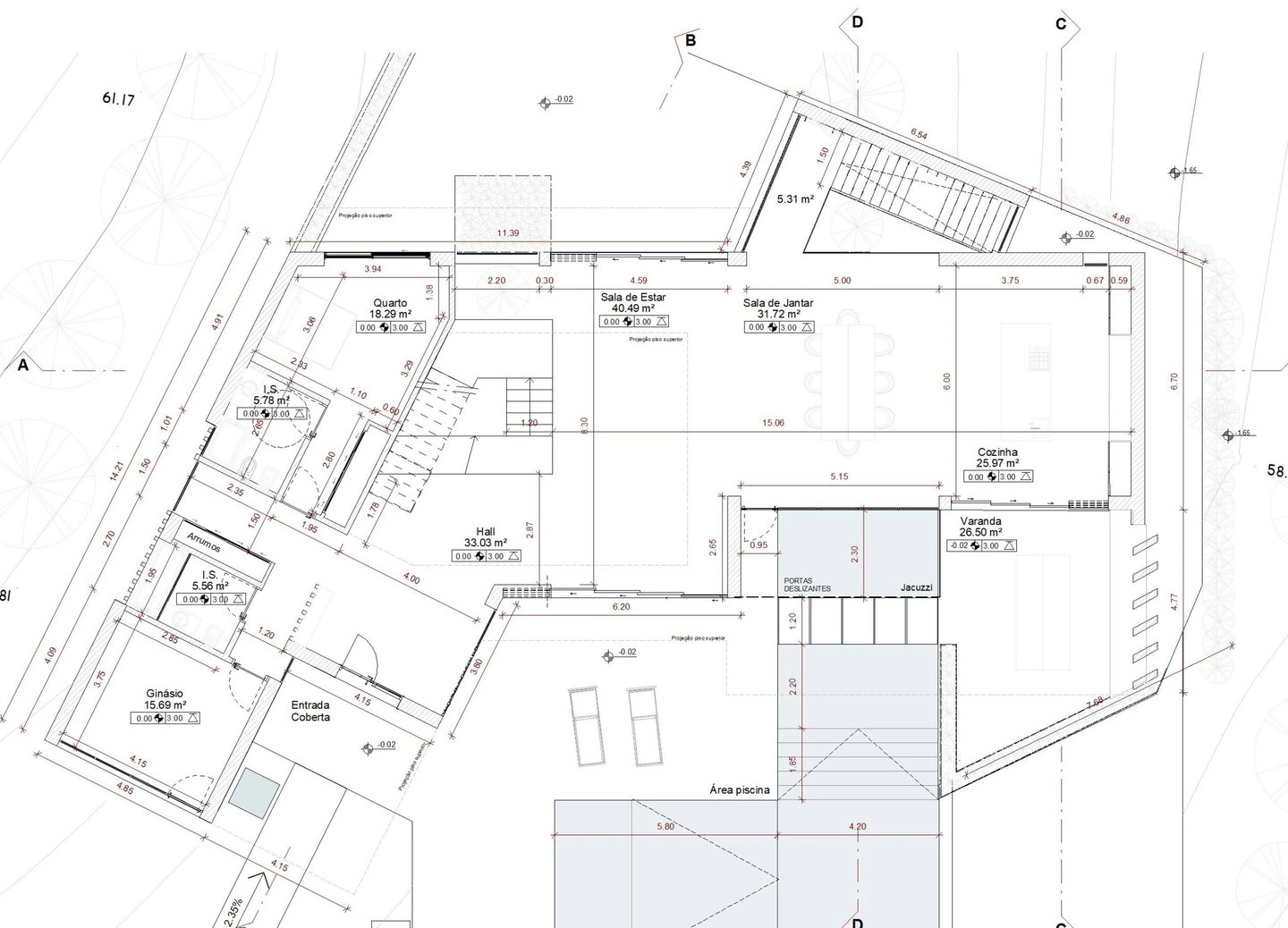
2.4.1 PISO 0 OU PISO TÉRREO
A entrada principal é realizada através do Piso Térreo ou Piso 0. Piso Térreo, onde está localizado um amplo pátio, um jacuzzi e uma piscina com borda infinita, a Sul.
Neste piso da moradia, temos ambientes integrados, como o hall de entrada, a sala de estar, a sala de jantar e a cozinha que dá acesso a um alpendre.
Alpendre, que poderá ser contemplado com uma bancada integrada, de forma a permitir a ligação interior/exterior, e ainda possibilitar uma zona de refeições exterior com uma vista privilegiada.
Ainda neste Piso Térreo, é preconizada uma área mais privativa, composta pela casa de banho social, um quarto com closet e instalação sanitária própria e uma divisão destinada a ginásio.
Legenda da imagem: Moradia em Lagos. Projeto de Arquitetura. Planta do Piso 0.
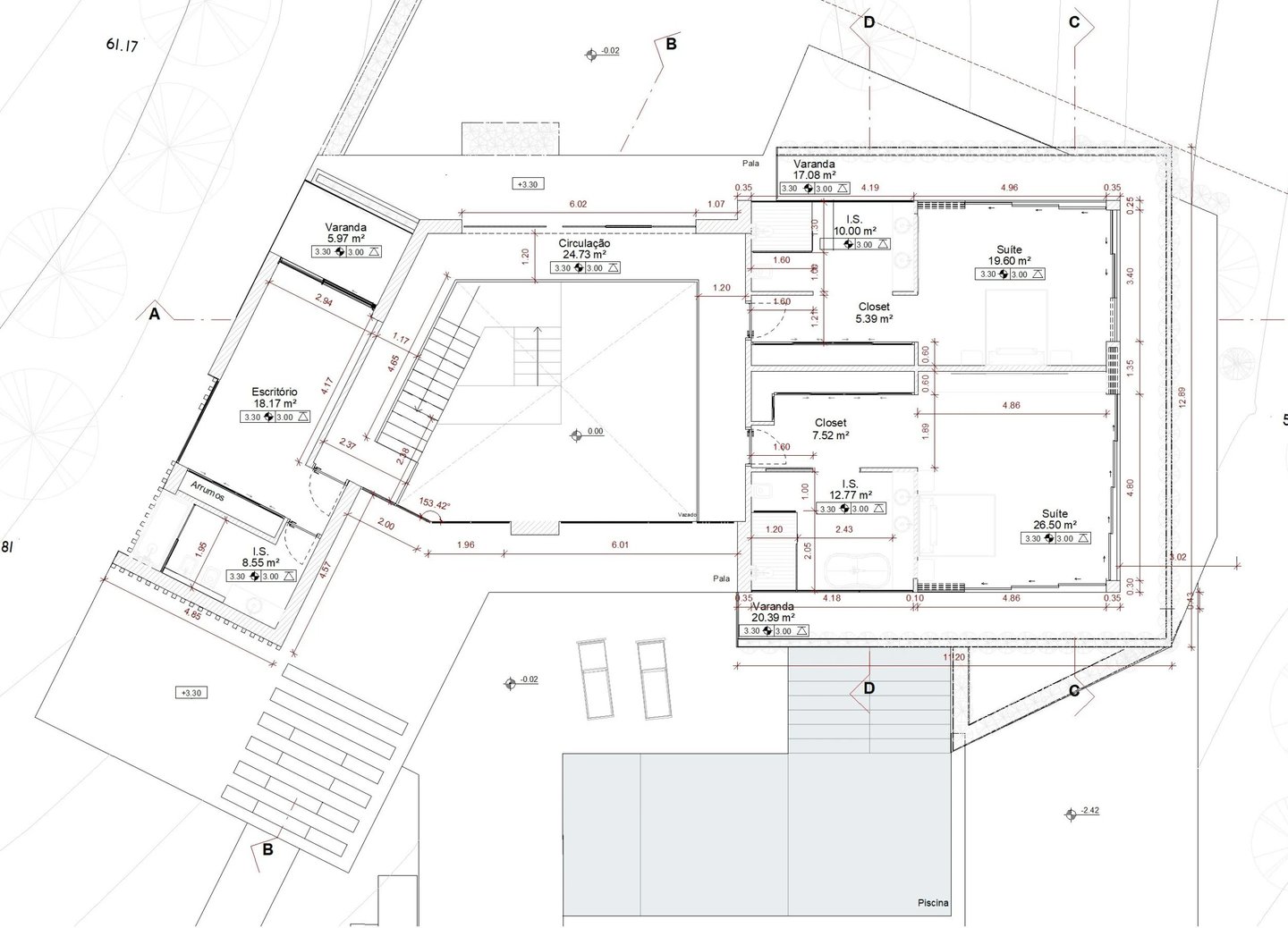
2.4.2 PISO 1
Junto ao Hall de entrada, e neste mesmo Piso Térreo, está localizada a circulação vertical para acesso ao Piso 1.
O Piso 1 alberga duas suítes completas e um escritório. Uma das suítes é uma suíte master. Ambas as suites têm acesso a uma grande varanda que circula a construção de Norte a Sul, proporcionando diferentes vistas.


Legenda da imagem: Moradia em Lagos. Projeto de Arquitetura. Planta do Piso 1.
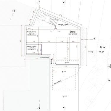
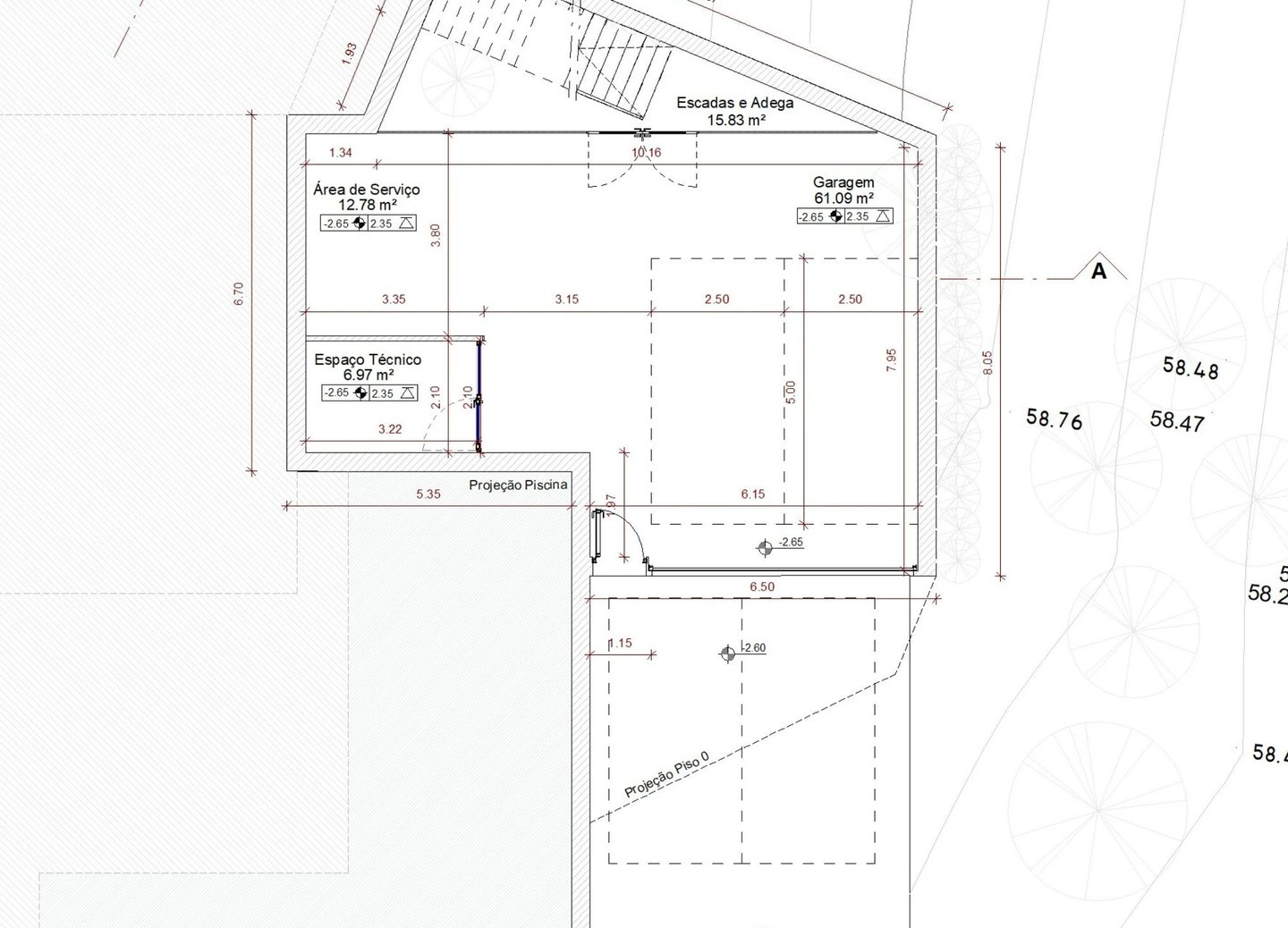
2.4.3 PISO -1, OU PISO DA GARAGEM
Voltando ao Piso Térreo ou Piso 0, junto à sala de jantar, encontramos outra circulação vertical. A escada em causa dará acesso à Cave.
A Cave é destinada a estacionamento, arrecadação e inclui um espaço técnico para instalação de equipamentos de apoio à piscina, e outras necessidades de infraestruturas de apoio à moradia.
Legenda da imagem: Moradia em Lagos. Projeto de Arquitetura. Planta do Piso -1.
2.5 SISTEMA
CONSTRUTIVO E
ACABAMENTOS
As paredes exteriores são de blocos térmicos, com isolamento aplicado no exterior. Interiormente as paredes são estucadas e os tectos são revestidos a pladur. Cozinha e casas de banho, são revestidas a azulejo até à altura de 2,00 metros.
Os pavimentos são revestidos com mosaico cerâmico, exceto a sala e os quartos que são em pavimento flutuante.
Em todos os espaços onde se verificar necessário, haverá tetos falsos, contínuos e/ou modulares, no sentido de facilitar e proporcionar a passagem das infraestruturas ocultas (eletricidade, ITED, AVAC, etc.) e as mesmas ficarem com fácil acesso para eventuais necessidades de manutenção.
As Coberturas da moradia, são planas, dotadas dos respetivos isolamentos e camadas impermeabilizadoras, e têm ligeiras pendentes para garantir o correto escoamento das águas.
Às Coberturas são previstos acessos, uma vez que nelas vão ficar localizados alguns dos equipamentos e máquinas essenciais para o bom funcionamento do edifício. Tais como painéis solares, equipamentos exteriores de AVAC, entre outros.


Legenda da imagem: Moradia em Lagos. Projeto de Arquitetura. Vistas tridimensionais do interior. Piso 0.
A Estrutura da moradia é de betão armado e com fundações diretas. Como já mencionado, a edificação é constituída por grandes vãos exteriores. Vãos que serão num sistema de envidraçados com vidro duplo e corte térmico e acabamento em madeira. Procurando uma solução sustentável e de baixo impacto ambiental.
Para controlo da incidência solar, o edifício tem palas de sombreamento em betão, existindo ainda a possibilidade de inserção de meios interiores de sombreamento como cortinas. Os vãos de porta interiores, são em madeira pintada. As paredes interiores são de alvenaria de tijolo cerâmico.


Legenda da imagem: Moradia em Lagos. Projeto de Arquitetura. Vistas tridimensionais do interior. Piso 0.
2.6 ÁREAS E
PARÂMETROS
URBANÍSTICOS
Área do lote: 4 446,80 metros quadrados
Área de Implantação do Polígono da Edificação: 878,60 metros quadrados
Área de implantação da Construção da Edificação: 253,50 metros quadrados
Área bruta de construção (sem cave): 419,30 metros quadrados
Área de construção do Piso 0: 253,50 metros quadrados
Área de construção do Piso 1: 165,80 metros quadrados
Área verde livre: 759,60 metros quadrados
Área verde condicionada: 2808,60 metros quadrados
Área de Impermeabilização: 489,90 metros quadrados
Cércea: 6,50 metros
Altura Total: 7,75 metros
Volumetria: 1 400,33 metros quadrados
Tipologia: T3 / 6 + 2
3.
PROJETO DE
ESTABILIDADE
3.1 AUTOR DO PROJETO
Autor do Projeto de Estruturas e Fundações: Engenheiro António Trigo Marquês
Como descrito no Projeto de Arquitetura, trata-se de um imóvel que se desenvolve em três pisos, ou dois pisos mais cave.
O número de patamares considerado no Projeto de Estabilidade, para esta moradia em Lagos, foi de sete. Designadamente e por ordem ascendente:
Nível 1: Fundação;
Nível 2: Piso 1 da Piscina;
Nível 3: Piso 2 da Piscina;
Nível 4: Tecto da Garagem;
Nível 5: Escadas do Piso 0;
Nível 6: Tecto do Piso 0;
Nível 7: Tecto do Piso 1 / Cobertura.


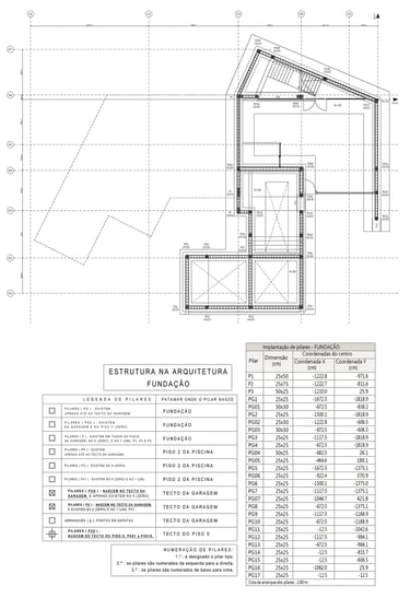
Legenda da imagem:
Moradia em Lagos. Projeto de Estabilidade.
Planta da Fundação. Estrutura na Arquitetura.


Legenda da imagem:
Moradia em Lagos. Projeto de Estabilidade.
Planta da Fundação. Estrutura.
3.2
NÍVEIS OU PATAMARES
DA OBRA
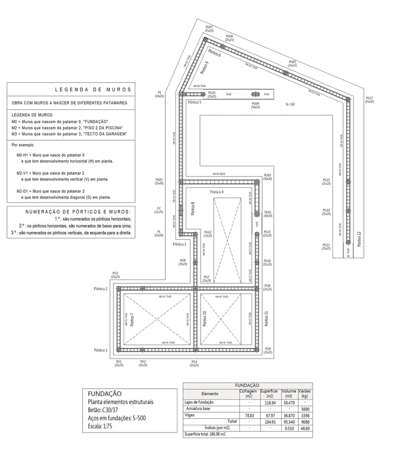
A estrutura da moradia, tem características próprias de um edifício de estrutura em betão armado, e é genericamente constituída por lajes, vigas, pilares, muros e elementos de fundação. Os materiais são os seguintes: Betão C30/37 e Aço S-500.
Os recobrimentos adotados foram de cinco centímetros para as fundações e de três centímetros para as restantes peças. No projeto, foi adotada uma espessura de vinte e cinco centímetros para as secções de pilares e vigas.
3.3
MATERIAIS
E OPÇÕES
3.4 LAJES
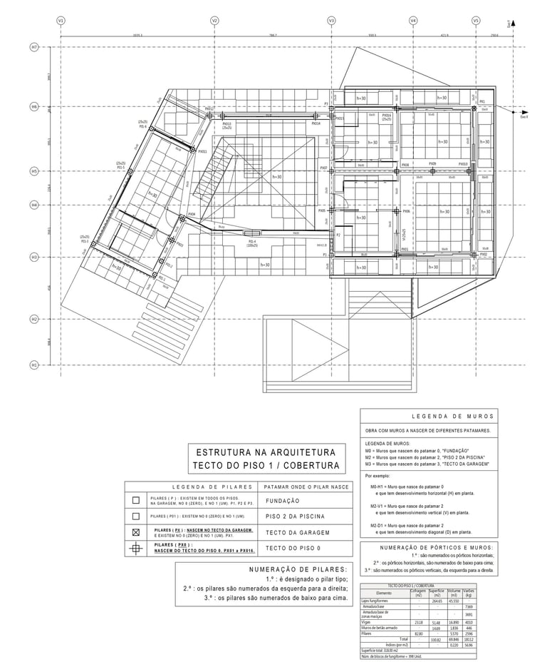
Todas as lajes da obra são maciças, com exceção das lajes do nível sete, as lajes da cobertura. Todas as lajes maciças, nomeadamente as do nível quatro “Tecto da Garagem”, e as do nível seis “Tecto do Piso 0”, são elementos de transição, ou seja, têm pilares a nascer.
A cobertura apresenta vãos de grande dimensão, que atingem os doze metros. Como tal, a solução de laje maciça é pouco viável, quer pela espessura de laje que seria necessária para vencer vãos desta ordem de grandeza, quer pelas cargas excessivas que uma laje maciça iria transmitir à Estrutura.
Deste modo, e para o nível da cobertura, optou-se pela solução de laje fungiforme aligeirada nervurada, que permite vencer os vãos definidos pelo Projeto de Arquitetura e reduzir as cargas transmitidas à Estrutura.


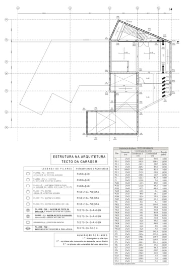
Legenda da imagem:
Moradia em Lagos. Projeto de Estabilidade.
Tecto da Garagem. Estrutura na Arquitetura.


Legenda da imagem:
Moradia em Lagos. Projeto de Estabilidade.
Tecto da Garagem. Estrutura.
3.5 COMPLEXIDADE DA OBRA
A obra apresenta uma complexidade considerável, derivada, por exemplo:
das descontinuidades do modelo e do número significativo de elementos de transição;
do número significativo de elementos de transição, associados a uma solução, idealizada pelo Projeto de Arquitetura, de lajes "lisas" ou lajes fungiformes;
do elevado número de pilares, das suas diferentes tipologias e dos distintos patamares onde nascem e terminam;
dos vãos a vencer, combinados com um modelo com múltiplas descontinuidades e uma grande quantidade de elementos de transição.




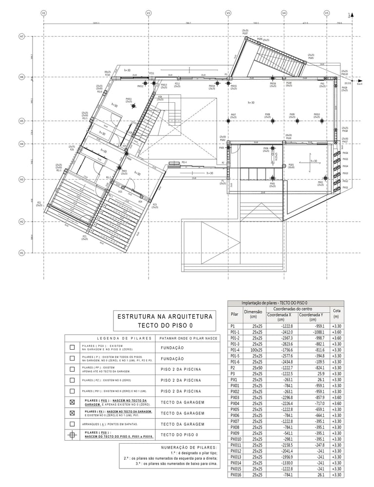
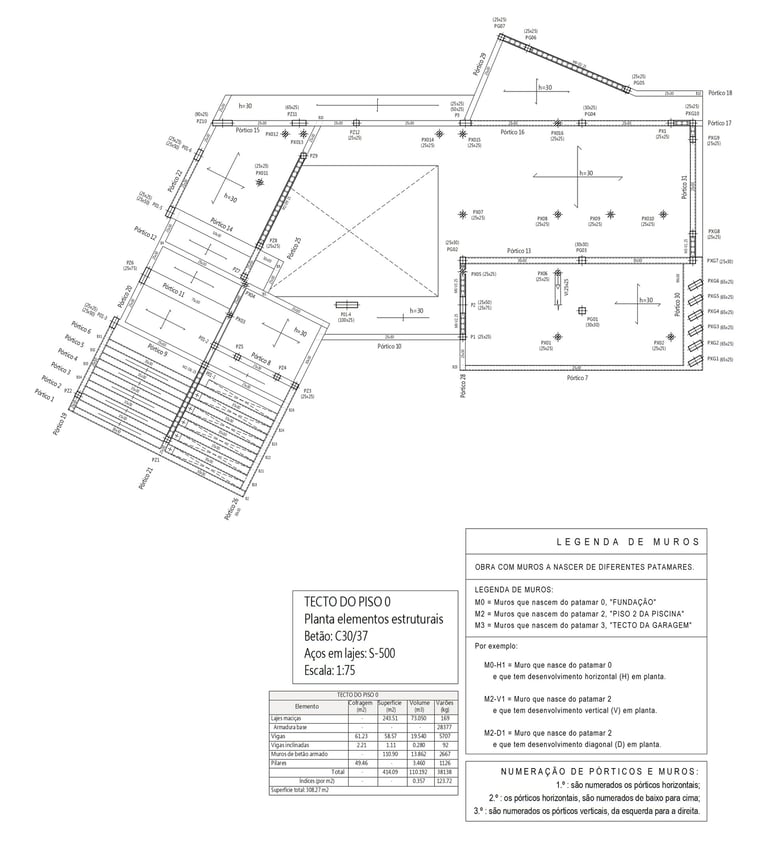
Legenda da imagem:
Moradia em Lagos. Projeto de Estabilidade.
Tecto do Piso 0. Estrutura na Arquitetura.
Legenda da imagem:
Moradia em Lagos. Projeto de Estabilidade.
Tecto do Piso 0. Estrutura.
3.6 VOLUME
DE PEÇAS DO PROJETO DE ESTABILIDADE
Tendo em conta a volumetria da moradia, o respetivo Projeto de Estabilidade gera, naturalmente, um número significativo de peças, sobretudo no que respeita a desenhos.
O elevado grau de complexidade da obra exige também uma maior atenção e um detalhamento acrescido, tanto das peças em geral como dos desenhos em particular.


Legenda da imagem:
Moradia em Lagos. Projeto de Estabilidade.
Cobertura. Estrutura na Arquitetura.
3.7 MAPAS
DE PILARES
Considerando a complexidade da obra, a sua execução requer bastante atenção e uma compreensão clara do Projeto de Estabilidade.
Tendo isto em mente, e no que respeita especificamente aos pilares do Projeto de Estruturas desta moradia em Lagos, foram criados desenhos denominados "Mapas de Pilares". Como o nome indica, os "Mapas de Pilares" fazem o mapeamento dos pilares, em especial daqueles que nascem num dado patamar.
Com o objetivo de simplificar ao máximo a interpretação do projeto, além dos "Mapas de Pilares", foram também criados "Quadros de Pilares", específicos para cada patamar, detalhando os pilares que nele têm origem.
Estes elementos - “Mapas de Pilares” e "Quadros de Pilares", para cada nível com os pilares que nascem - foram desenvolvidos para assegurar a correta implantação dos respetivos arranques, entre outros aspetos essenciais à execução da estrutura.




Legenda das três imagens presentes na galeria : Moradia
em Lagos. Projeto de Estabilidade. Mapas de pilares.
3.8 PROJETO DE EXECUÇÃO
3.8.1 QUANTIDADES DA OBRA
As quantidades obtidas para a obra, foram de 539,170 metros cúbicos de betão e 115 804 quilogramas de varões de aço.
3.8.2 ORÇAMENTO DA OBRA
A execução da Estrutura e Fundações desta moradia foi orçamentada em 379.324,14 € (sem IVA) ou 466.568,69 € (com IVA a 23%).
3.9 SOFTWARE UTILIZADO
Para o Projeto de Estabilidade desta moradia em Lagos, foi utilizado software BIM (Building Information Modeling), capaz de gerar ficheiros IFC (Industry Foundation Classes).
Através do modelo BIM, foram também obtidas as peças do Projeto de Execução, nomeadamente o Mapa de Quantidades e a Estimativa Orçamental.


Legenda da imagem: Moradia em Lagos. Projeto de Arquitetura e Projeto de Estabilidade.
Modelos BIM da Arquitetura e da Estrutura, lado a lado.
3.10 LEGISLAÇÃO
A Estrutura e Fundações foram calculadas e dimensionadas de acordo com os Eurocódigos, nomeadamente:
Eurocódigo 2 – relativo ao Projeto de Estruturas de Betão;
Eurocódigo 8 – relativo ao Projeto de Estruturas em Regiões Sísmicas;
E demais legislação aplicável
antoniotm.pt © Todos os direitos reservados | POLÍTICA DE PRIVACIDADE | POLÍTICA DE COOKIES
ANTÓNIO TRIGO MARQUÊS
ENGENHEIRO CIVIL PROJETISTA
AntonioTM@antoniotm.pt
SERVIÇOS
PROJETO DE ESTABILIDADE
PROJETOS DE ESPECIALIDADES
PROJETOS PARA MORADIAS


