MORADIA
NA AROEIRA
TABELA DE CONTEÚDOS
2. PROJETO DE ARQUITETURA
2.1 AUTORIA DO PROJETO
2.2 CARACTERÍSTICAS DO LOTE
2.3 OCUPAÇÃO DO LOTE
2.4 A HABITAÇÃO
2.4.1 PISO 0
2.4.2 PISO 1
2.5 SISTEMA CONSTRUTIVO E ACABAMENTOS
2.5.1 SISTEMA CONSTRUTIVO
2.5.2 REVESTIMENTOS
2.5.3 PISCINA
2.5.4 VÃOS, PORTAS E JANELAS
2.5.5 PALAS, TERRAÇOS, VARANDAS E COBERTURAS
1. LOCAL E TIPO DE OBRA
2. PROJETO DE ARQUITETURA
2.1 AUTORIA DO PROJETO
2.2 CARACTERÍSTICAS DO LOTE
2.3 OCUPAÇÃO DO LOTE
2.4 A HABITAÇÃO
2.4.1 PISO 0
2.4.2 PISO 1
2.5 SISTEMA CONSTRUTIVO E ACABAMENTOS
2.5.1 SISTEMA CONSTRUTIVO
2.5.2 REVESTIMENTOS
2.5.3 PISCINA
2.5.4 VÃOS, PORTAS E JANELAS
2.5.5 PALAS, TERRAÇOS, VARANDAS E COBERTURAS
1. LOCAL E
TIPO DE OBRA
Localização da obra: Aroeira, Almada, Portugal
Tipo de obra: Obra de construção de uma moradia unifamiliar
2.
PROJETO DE
ARQUITETURA
2.1
AUTORIA DO PROJETO
O descrito em relação ao Projeto de Arquitetura, é no essencial o que consta da respetiva Memória Descritiva. E créditos devem ser dados ao seu autor.
Autoria do Projeto de Arquitetura "Moradia na Aroeira": BG arquitectos
Legenda da imagem: Moradia na Aroeira, concelho de Almada. Projeto de Arquitetura. Vista tridimensional.
2.2
CARACTERÍSTICAS
DO LOTE
O lote é localizado na Aroeira, concelho de Almada, e o seu terreno tem uma área de 632,30 metros quadrados. Em termos morfológicos apresenta uma configuração rectangular, com aproximadamente 30,30 metros de largura, por 20,90 metros de profundidade.
O arruamento apresenta-se rebaixado em relação à sua cota inicial, o que estabelece um perfil desnivelado entre a cota de soleira base do lote e cota de acesso ao arruamento neste local. Desta forma o lote apresenta-se sobrelevado, mantendo uma cota de nivelada, praticamente em toda a sua área.
Legenda da imagem: Moradia na Aroeira, concelho de Almada. Projeto de Arquitetura. Vista tridimensional.
2.3
OCUPAÇÃO
DO LOTE
A ocupação do lote rege-se pelos parâmetros urbanísticos, o qual define uma tipologia de moradia unifamiliar isolada.
A área de implantação da habitação é de 145,30 metros quadrados, sendo a área de construção de 285,30 metros quadrados, ficando abaixo dos limites previstos.
A área lateral norte, é destinada a parqueamento coberto de duas viaturas. Esta área também servirá de acesso de serviço e ao espaço a tardoz do lote.
Todo o quadrante Sul e Poente do lote, com excepção de uma pequena zona destinada a barbecue e apoio de piscina, é impermeável e liberto de construção, de forma a proporcionar o maior espaço possível para os arranjos exteriores e zonas exteriores de lazer.
Esta zona ficará nivelada com a cota de soleira da habitação, que será sobrelevada relativamente ao arruamento, conforme o perfil de terreno existente.
Legenda da imagem: Moradia na Aroeira, concelho de Almada. Projeto de Arquitetura. Vista tridimensional.
2.4
A HABITAÇÃO
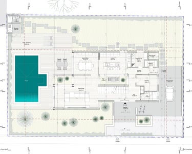
A habitação desta moradia na Aroeira, desenvolve-se em dois pisos, Rés do Chão e 1º andar. Ou Piso 0 e Piso 1.
Legenda da imagem: Moradia na Aroeira, concelho de Almada. Projeto de Arquitetura. Vista tridimensional.
2.4.1 PISO 0
A entrada principal é feita pela frente Nascente Sul do lote, onde é proposto uma entrada ampla e recuada e coberta por uma pala elevada que protege o patamar de acesso à habitação através de uma escadaria ou rampa lateral, no caso do acesso lateral de serviço.
O hall de entrada é delimitado por uma escada em cascata com apenas um lance, que permite aceder ao primeiro piso, onde ficam os quartos.
O hall de entrada permite a comunicação com a sala de estar e com o corredor da área de serviço. A área de serviço é composta por uma zona de tratamento de roupa e despensa.
Ainda no Piso Térreo, ou Piso 0, temos uma instalação sanitária social, um pequeno escritório e um pátio interior.
Pátio interior, que permite a entrada de luz natural por todo este piso, sendo a cozinha o espaço que mais poderá usufruir deste espaço aberto, pois tem comunicação directa com o mesmo, através de um envidraçado que poderá ser aberto.
A cozinha pode utilizar esta área para refeições ligeiras ou simplesmente para ventilação natural combinada com o vão para o exterior.
A cozinha também poderá ser aberta para a sala de jantar através de painéis de correr, tornado este espaço mais ou menos compartimentado consoante o nível de privacidade que se pretenda obter.
As salas de estar e de jantar estão separadas visualmente por um conjunto de elementos verticais (ripado), que não quebra a ligação física entre estes dois espaços e os pátios interior e exterior.
A Sala de Jantar poderá também ser aberta ao exterior, onde existe uma zona de refeições coberta pelo volume do piso superior.
Legenda da imagem: Moradia na Aroeira, concelho de Almada. Projeto de Arquitetura. Planta do Piso 0.
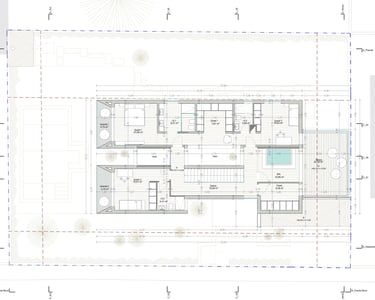
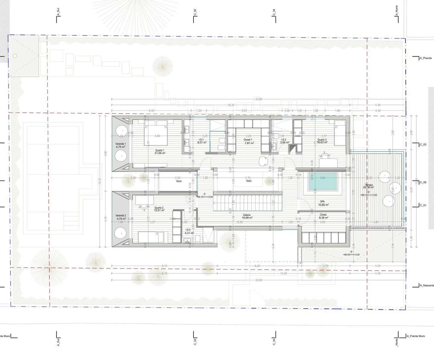
2.4.2 PISO 1
Este piso é acedido através uma escada de tiro executada em betão armado com 1,20 metros de largura, que comunica com uma galeria de distribuição dos compartimentos deste piso.
O 1º Piso, ou Piso 1, é constituído por três quartos, um deles a suite principal com closet dedicado, e dois quartos com instalação sanitária integrada.
Temos ainda acesso a um closet comum e a uma zona destinada a SPA interior com acesso a uma varanda exterior.
Esta varanda é também partilhada com o quarto 3. Os restantes quartos têm varandas privativas com exposição a Sul.
Legenda da imagem: Moradia na Aroeira, concelho de Almada. Projeto de Arquitetura. Planta do Piso 1.
2.5
SISTEMA CONSTRUTIVO
E ACABAMENTOS
2.5.1
SISTEMA CONSTRUTIVO
A Estrutura da moradia é de betão armado e com fundações diretas. A construção é fechada a panos de tijolo e termicamente isolada através do sistema “ETICS Capotto Viero” (poliestireno expandido M1) em toda a periferia eliminando as pontes térmicas.
2.5.2 REVESTIMENTOS
No Piso Térreo, a pintura exterior é diferenciada por uma tonalidade cinza escuro, o que irá configurar uma quebra visual nos volumes de cor branca do piso superior.
No interior, todas as paredes de alvenaria, serão acabadas com estuque projectado tipo “Ceral” e com pintura a tinta de água de cor branca. Estas coexistirão com divisórias em gesso cartonado, do tipo “Pladur”, barrado e pintado a tinta plástica de cor branca.
Todas as instalações sanitárias, cozinha e zona de tratamento de roupa, são revestidas a cerâmico. Os pavimentos, com excepção destes dois últimos espaços, são em microcimento e na sua maioria, revestidos com um pavimento flutuante de madeira hidrófuga do tipo “Quick-Step” em carvalho natural em tábua larga.
2.5.3 PISCINA
A envolvente da piscina será revestida parcialmente com deck de madeira ou compósito, alterando com relva, mantendo as superfícies exteriores permeáveis.
A piscina será executada em betão armado e posteriormente revestida em pastilha cerâmica.
De forma a manter a privacidade deste espaço exterior, sobrelevado em relação ao arruamento, a opção recaiu sobre sebes arbustivas verdes.
2.5.4
VÃOS, PORTAS E JANELAS
Todas as caixilharias deverão ser executadas em alumínio ou pvc lacado, com corte térmico no caso da primeira opção, e aplicação de vidro duplo de baixa emissão.
Estão previstos estores de alumínio lacados na cor da caixilharia, com isolamento integrado, como forma de controlo de entrada da luz solar, e protecção adicional à habitação.
A porta principal de acesso à habitação, será executada em estrutura metálica e revestida a painel fenólico a simular madeira de wangê.
2.5.5 PALAS, TERRAÇOS,
VARANDAS E COBERTURAS
As guardas das varandas são executadas em vidro laminado pleno com 12 milímetros, suportado por calha continua de aço inox, de forma a serem o mais transparente e resistente possível.
As palas de betão que servem de cobertura à zona exterior de entrada e parte do parqueamento, são executadas em betão armado, afagado mecanicamente, com pendente, e com acabamento em pintura epóxi, de forma a obter a menor espessura possível.
Os terraços e varandas são zonas impermeabilizadas com sistema do tipo “Imperalum”, com pendente e escoamento de aguas pluviais, termicamente isolados, revestidos a cerâmico ou microcimento.
No caso da cobertura, com aplicação de seixo rolado como protecção mecânica do sistema de impermeabilização.
Na cobertura existem colectores solares, destinados ao aquecimento de águas. Colectores solares, que em conjunto com uma caldeira eléctrica, permitem fazer uma gestão mais optimizada dos recursos da habitação.
2.6
ACESSIBILIDADES
Em cumprimento com a legislação, o projecto contempla a acessibilidade a pessoas de mobilidade condicionada.
A diferença de cotas entre o arruamento e a cota de soleira, cerca de 0,60 a 0,70 metros, implica a colocação de equipamento mecânico exterior, como uma plataforma hidráulica, de forma a que uma pessoa de mobilidade condicionada possa vencer os três degraus.
No caso da zona de parqueamento, o acesso aqui é feito ao nível da cota de soleira da habitação.
2.7
MUROS DE VEDAÇÃO
O lote será delimitado por muro construído em alvenaria, com um metro de altura, complementado por sebe arbustiva verde.
Os acessos destinados a pessoas e veículos, são próximos, mas diferenciados. Ambos, com abertura eléctrica.
E constituídos por portões executados em estrutura metálica revestida a painéis de chapa galvanizada e pintada.
O primeiro será inteiramente de correr, o segundo, de menor dimensão, de abrir.
Contiguamente a este portão de abrir, será colocado vídeo porteiro, caixa postal, e todos os contadores de serviços e verificação técnica tais como: gás, água, electricidade e outros.
2.8 ANEXO
O anexo é destinado a um barbecue coberto e uma instalação sanitária de apoio à piscina, e possui uma área de 7,70 metros quadrados.
3.
PROJETO DE
ESTABILIDADE
3.1
AUTOR DO
PROJETO
Autor do Projeto de Estabilidade: António T. Marquês
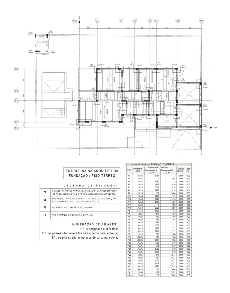
Legenda da imagem: Moradia na Aroeira, concelho de Almada. Projeto de Estruturas e Fundações. Planta da Estrutura na Arquitetura. Fundação e Piso Térreo.
3.2 NÍVEIS
OU PATAMARES
DA OBRA
Como descrito no Projeto de Arquitetura, trata-se de um imóvel constituído por dois pisos.
O número de patamares considerado no Projeto de Estrutura e Fundações, para esta moradia na Aroeira, foi de três. Designadamente e por ordem ascendente:
Nível 1: Fundação / Piso Térreo;
Nível 2: Tecto do Piso 0;
Nível 3: Tecto do Piso 1 / Cobertura.
Legenda da imagem: Moradia na Aroeira, concelho de Almada. Projeto de Estruturas e Fundações. Planta Estrutural da Fundação e Piso Térreo.
3.3
MATERIAIS
E OPÇÕES
A estrutura da moradia tem características próprias de um edifício de estrutura em betão armado, e é genericamente constituída por lajes, vigas, pilares e elementos de fundação. Os materiais utilizados, resumidamente, são os seguintes:
Sapatas e vigas de fundação: Betão C25/30 e Aço A500;
Restantes peças: Betão C30/37 e Aço A500.
Os recobrimentos adotados são de 5 centímetros para as fundações e de 3 centímetros para os outros elementos. É adotada uma espessura de 25 centímetros para as secções de pilares e vigas.
Legenda da imagem: Moradia na Aroeira, concelho de Almada. Projeto de Estruturas e Fundações. Planta da Estrutura na Arquitetura. Tecto do Piso 0.
3.4 LAJES
Todas as lajes da obra são lajes maciças, com exceção das lajes do piso térreo que servem o desvão sanitário. Estas lajes do piso térreo, são lajes aligeiradas de vigotas.
Legenda da imagem: Moradia na Aroeira, concelho de Almada. Projeto de Estruturas e Fundações. Planta Estrutural do Tecto do Piso 0.
3.5
QUANTIDADES
DA OBRA
As quantidades obtidas para a obra, foram as seguintes:
Fundações (Sapatas isoladas. Vigas de equilíbrio do anexo.): 30,920 metros cúbicos de betão e 1 732 quilogramas de varões de aço;
Estrutura: 150,260 metros cúbicos de betão e 15497 quilogramas de varões de aço.
Legenda da imagem: Moradia na Aroeira, concelho de Almada. Projeto de Estruturas e Fundações. Planta da Estrutura na Arquitetura. Tecto do Piso 1 e Cobertura.
3.6
SOFTWARE UTILIZADO
Para o Projeto de Estabilidade desta moradia em Lagos, foi utilizado software BIM (Building Information Modeling), capaz de gerar ficheiros IFC (Industry Foundation Classes).
Legenda da imagem: Moradia na Aroeira, concelho de Almada. Projeto de Estruturas e Fundações. Planta Estrutural do Tecto do Piso 1 e Cobertura.
3.7 LEGISLAÇÃO
Em Agosto de 2021, a Estrutura e Fundações desta moradia na Aroeira, foi calculada e dimensionada, segundo o Regulamento de Segurança e Acções (RSA), e o Regulamento de Estruturas de Betão Armado e Pré-Esforçado (REBAP).
antoniotm.pt © Todos os direitos reservados | POLÍTICA DE PRIVACIDADE | POLÍTICA DE COOKIES
ANTÓNIO TRIGO MARQUÊS
ENGENHEIRO CIVIL PROJETISTA
AntonioTM@antoniotm.pt
SERVIÇOS
PROJETO DE ESTABILIDADE
PROJETOS DE ESPECIALIDADES
PROJETOS PARA MORADIAS


